
Ce groupe scolaire fait partie de cette importante opération immobilière initiée par la Ville de Bordeaux au tout début des années 50 sur la rive droite de la Garonne et dénommée ‘’cité de la Benauge’’.
L’école maternelle et l’école primaire, autrefois séparée en deux établissements distincts, l’un pour les filles l’autre pour les garçons, sont toujours en activité. Les bâtiments ont été particulièrement bien conservés, et ont même conservé précieusement des éléments d’époque que vous pourrez découvrir dans cet article.
Ce groupe scolaire de plus de deux cents mètres au nord de la cité Bénauge, oeuvre des architectes Pierre Mathieu et Roger Tagini, ferme la perspective du parc sur lequel donnent les immeubles-peigne de l’architecte Paul Volette et les deux grandes barres de son collègue Jacques Carlu.


Cette implantation, tout en permettant d’éviter la vue de constructions voisines vétustes situés plus au nord, permet donc à toutes les classes d’être orientées plein Sud, les cours de récréation prolongeant les vastes espaces verts ouverts au public.
« L’école affirme ainsi son appartenance à la nouvelle zone urbanisée, ouverte vers le soleil radieux promis par cette architecture moderne. Le plan traduit clairement cette dimension urbaine, ce souci d’ouverture et de lisibilité ».


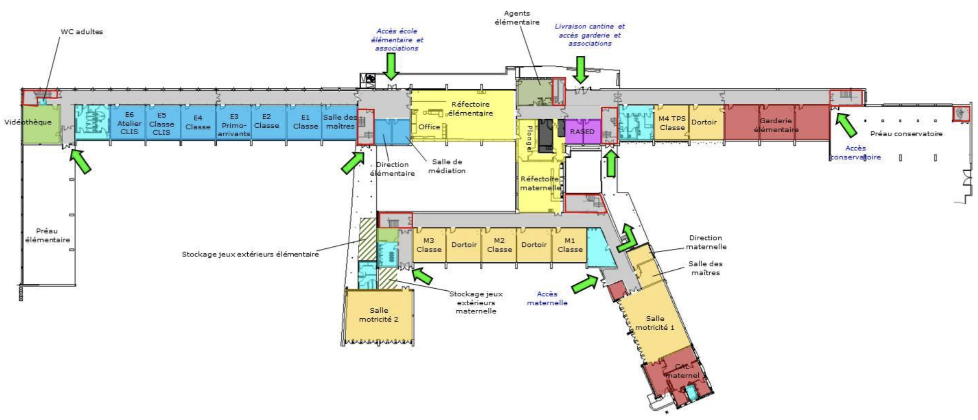
La disposition actuelle diffère peu de celle d’origine décrite dans un numéro de la revue Urbanisme. On retrouve au rez-de-chaussée du noyau central de ce groupe scolaire : les halls d’entrée, les réfectoires, les bureaux des directeurs et des concierges. Au premier étage, au-dessus des réfectoires des écoles primaires, le groupe scolaire bénéficie d’une grande salle des fêtes avec une scène assez profonde pour permettre aux enfants de réaliser des spectacles.


De part et d’autre du noyau central, les écoles primaires de garçons à l’ouest, et de filles à l’est, disposent chacune de 16 classes réparties sur deux niveaux, de deux ateliers pour les garçons et d’une grande salle d’enseignement ménager pour les filles.
L’école maternelle est implantée parallèlement au noyau central, mais décalée de quelques mètres plus au Sud, avec deux ailes en retour d’équerre d’un seul niveau, marquant ainsi la séparation des trois cours de récréation. Elle se compose de 10 classes, d’une salle de repos et deux grandes salles de jeu.
Chaque école dispose de ses sanitaires et d’un préau donnant sur sa cour de récréation.




On trouve également dans ce groupe scolaire : deux logements de concierge, un pour les écoles primaires et un pour la maternelle. Les trois directeurs bénéficient également d’un logement de fonctions sur place. Les autres instituteurs pouvant quant à eux trouver des logements dans les immeubles collectifs de la cité Bénauge.
La façade Nord de ce groupe scolaire est lisse, plane et fermée, marquée de part et d’autre du noyau central par les deux étroits bandeaux de fenêtres des couloirs qui desservent les classes des écoles primaires. La façade Sud, au contraire, est largement percée de grandes baies vitrées. Cette façade vitrée est placée en net retrait par rapport au nez des murs porteurs en pierre de taille. Les classes sont abritées du soleil par de grands stores en toile aujourd’hui de couleurs vives. Chaque classe s’inscrit dans une trame de 7,70 mètres avec des allèges en béton.


Pour conclure, il nous a semblé intéressant de citer la fin de l’article de la revue Urbanisme présentant ce tout nouveau groupe scolaire : » Le programme prévoit de satisfaire les besoins nouvellement créés par la construction des immeubles collectifs de la cité de la Bénauge et de décongestionner les écoles voisines. L’école primaire comprend 16 classes et 2 ateliers pour les garçons, 16 classes et une grande salle d’enseignement ménager pour les filles. La maternelle se compose de 10 classes, d’une salle de repos et deux salles de jeu.
La superficie du terrain est de 15.000 m’, soit 10 mètres carrés par élève. Il n’est pas prévu de terrain d’éducation physique en raison des installations sportives existantes ou projetées à proximité.
L’élément onéreux de la construction est constitué par les fondations sur un sol marécageux dont la réaction est de l’ordre de 200 gr. au cm carré. Sauf pour certaines parties élevées à rez-de-chaussée et établies sur semelles filantes en béton armé, l’ensemble est fondé sur pieux battus en béton armé.
Dans l’ensemble, l’architecte s’est attaché aux « procédés de construction économiques » rationnellement utilisés techniques modernes, tout en négligeant autant que possible les « matériaux dits économiques ». Certains matériaux sont même de qualité (pierre des Charentes ferme, bois de chêne et de sapin du Nord) et choisis pour leur valeur architecturale et technique en vue d’un entretien minimum.
Le prix de revient, aggravé par les sujétions de fondations, s’est élevé à 33.800 francs par mètre carré utile, soit 6.200.000 francs la classe « .
Et si vous ne l’avez pas déjà fait après la lecture de notre article sur la construction de la cité Benauge, nous vous invitons à visionner ce film de 1956 réalisé par Marcel de Hubsch, prise de vues Pierre Thomas, consultable sur Daily Motion : https://www.dailymotion.com/video/x1bci6m
SOURCES :
Nous tenons à remercier tout particulièrement l’accueil qui nous a été réservé et qui nous a permis de réaliser ces photos.